W trakcie konsultacji mieszkańcy będą mogli wskazywać wybrane przez siebie warianty oraz zgłaszać swoje uwagi i propozycje. Dwa pierwsze spotkania odbędą się u zbiegu ulic Bema i Sowińskiego: 20 września, w godz. 16 - 19 oraz 23 września w godzinach 10 -13. Spotkanie podsumowujące jest planowane na 25 września. Odbędzie się ono w budynku PSP nr 5, przy ul. Sowińskiego, o godz. 17.
Zainteresowani mogą również przesyłać wypełnione ankiety drogą mailową na adres: [email protected].
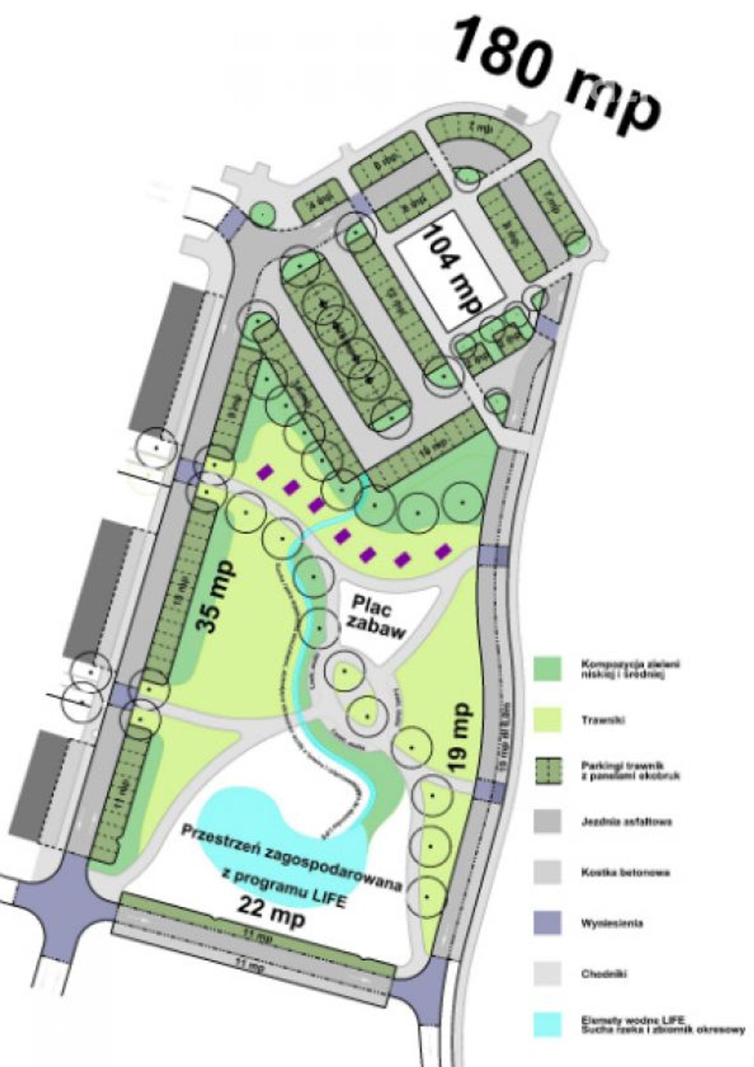
Teren położony między ulicami Bema, Sowińskiego i Jasińskiego będzie przebudowywany w przyszłym roku. Koncepcje przygotowane przez Miejską Pracownię Urbanistyczną zakładają m.in. urządzenie terenów rekreacyjnych, w tym budowę placu zabaw. Część prac będzie prowadzona w ramach realizacji programu LIFE. To program, który ma przeciwdziałać negatywnym skutkom zmian klimatu. Powstaną także nowe miejsca parkingowe.
Najświeższe wiadomości z Radomia i regionu znajdziesz na profilu CoZaDzien.pl na Facebooku - TUTAJ.













